Gdańsk Orunia,
27 000,00 PLN
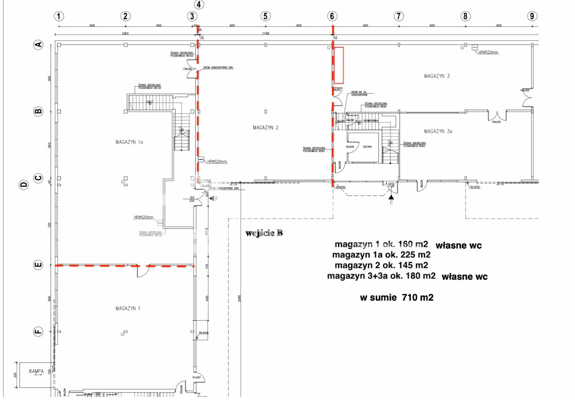
Magazyn na wynajem , 710 m2
38,03 PLN /m2
Powierzchnia
710 m2
Liczba pokoi
2

Dane nieruchomości:

Numer oferty: DJ736673
Powierzchnia: 710 m2
Liczba pokoi: 2
Piętro/Pięter 0 z 2
Ogrzewanie: inne
Cena za m2: 38,03 PLN
Cena: 27 000,00 PLN

Opis nieruchomości:

Magazyn na wynajem o powierzchni 710m2 Gdańsk Orunia Trakt Św. Wojciecha

Dostępny Od 01 lutego 2026 roku.
Wysokość hali 4 metry. Posadzka antystatyczna. Ogrzewany i w części klimatyzowany. 
Istnieje możliwość podziału i wynajmu na mniejsze.
(160m2, 225m2, 145m2,180m2 )
Dogodny dojazd TIR do obwodnicy.
Miejsca parkingowe.

Cena  27.000 netto 

Więcej informacji u Agenta prowadzącego,
Anna Rachoń
tel. 668 862 853
zapraszam na prezentację.


Skontaktuj się z agentem :
Anna Rachoń

Telefon : 668862853

a.rachon@djrenoma.pl


Lokalizacja: